Posted on 24 Jan 2025

Gardens

To coincide with our Lost Gardens of London exhibition, we’re asking people to share their favourite city gardens lost to time. Gwendolyn van Paaschen, Chairman at the John Brookes Denman Foundation, picks a modernist garden once at the heart of Penguin publishing, designed by John Brookes and destroyed in 2001: At the Chelsea Flower Show in 1962 a hot young designer raised more than eyebrows with his controversial exhibition garden that depicted a small townhouse garden dominated by the trappings of stylish urban living, including sculpture, modernist furniture, a pergola, a water feature, and even an incinerator.

John Brookes examines his 1962 Chelsea Flower Show exhibition garden.

His objective was to demonstrate how a space outside the home could and should be treated as an extension of its interior: a ‘room outside’.  A commonplace notion now, at the time this was an entirely new approach to garden design. Rather than emphasizing unique or exotic plant material as was the wont at Chelsea in the early 1960s, the planting in this novel garden was relegated to the role of three-dimensional mass with pots of flowers for pops of colour, a deep break with horticultural tradition but relevant, accessible, and exciting to anyone with a small garden.  Despite its novelty, the garden was awarded Silver Gilt, a significant achievement for 28-year-old John Brookes, the first garden designer to display a modern, designed garden at Chelsea that was not about plants, and the first to present a garden independently rather than under the aegis of a nursery. At the time, Brookes was working at Architectural Design (AD) magazine, writing a bi-monthly column on landscape design where, among other things, he emphasized the importance of designing the space around and between buildings and using design to connect them to the surrounding landscape, an approach he felt modern architects lamentably neglected.  His hours at AD provided him time to build a fledgling garden design practice, a business which picked up dramatically in the wake of his Chelsea success. In 1964, on the recommendation of Theo Crosby, Technical Editor at AD, Brookes was approached by architects John Spence & Partners, who were designing the extension to the factory building for Penguin Books LTD on the old Bath Road, Harmondsworth, in near Heathrow Airport.  The site was on flat, vacant land.

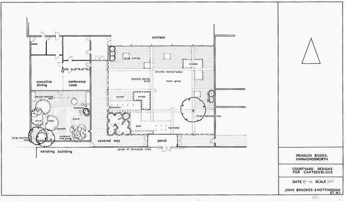
John Brookes’ 1964 proposed layout for the Canteen Block at Penguin Books offices

Perhaps inspired by Brookes’ proselytizing on tying architecture to garden, they asked him to design its outdoor spaces including the front of the building, the canteen courtyard, and the Director’s courtyard. The canteen courtyard was linked to the factory by two parallel covered walkways. Wide, glazed doors opened from the canteen to the courtyard allowing staff to sit and walk outside during the work day, and large plate glass windows offered views of both courtyards from the surrounding offices.

Plate glass windows throughout the complex permitted views of the courtyards, linking interior and exterior

Consistent with his views that ‘gardens are for people’, (the title of his garden design guru Thomas Church’s seminal book), and that interiors and exteriors of buildings should be linked (in this case a workplace), Brookes treated the spaces, again, as ‘rooms outside’.  The result exemplified how buildings could and should be connected to one another as well as to their function and surroundings.

The layout included places for staff to sit and walk

While his design layout for Penguin was unsurprisingly influenced by the cutting-edge modernist architecture in which he was immersed at AD, it was also fundamentally influenced by the rectilinear patterns in the 1920s abstract paintings by Piet Mondrian.  Throughout his career, Brookes believed and taught that modern paintings by artists like Mondrian and Ben Nicholsen can help garden designers understand how to combine shapes, plantings, and materials into balanced three-dimensional composition. He demonstrated this in the layout for Penguin by creating a composition composed of three-dimensional and overlapping rectilinear shapes using concrete, planting, paving, grass, and white chippings.  The varying textures of his materials added depth and complexity to the composition and the plantings added three-dimensional mass as well as a connection to nature and the passing of the seasons. In his autobiography Brookes explained that;

Whereas Mondrian used strong lines and colours in his paintings, I used strong lines and textures with colour, including water, concrete, grass and plant material. The garden was fairly typical of my work at the time, but looking back, I think I would use larger blocks of plant material now. This garden seemed to catch the spirit of the time and was an early example of a new way of designing a garden space.[1]

The Penguin project was the confluence of Brookes’ design philosophy with important design themes of the day.  It was a low maintenance, designed living space created to suit the modern lifestyle.  Its lines were stylish and clean, made of a combination of new and natural materials.  It succeeded in knitting together architecture and garden while meeting the needs of those who worked there.

An undated sketch shows the Mondrian influence on the Clock House Terrace

Celebrated in the landscape and architecture community as ‘an example of cutting edge design’, the design exemplified the design zeitgeist of the early 1960s.[2]  So successful was Brookes’ achievement that Geoffrey and Susan Jellicoe included it in their 1968 book, Modern Private Gardens, (Abelard-Schumann LTD) along with Brookes 1962 Chelsea garden.  The Jellicoes’ book depicted a selection of 42 modern gardens.  Among other designers included in it were some of those whose profound influence had catalyzed the development of Brookes’ design philosophy and approach:  Sylvia Crowe and Brenda Colvin with whom he had worked in the late 1950s; Thomas Church; Roberto Burle Marx whom he met at the Jellicoe’s Highpoint 1 flat in London; and Russell Page who toured Brookes around the gardens Page had designed for the Festival of Britain before they were later destroyed. Despite catching ‘the spirit of the time’ and the project’s acclaim and historic significance, when Penguin Books moved its offices to central London in 2001, the site was sold, and the courtyards were tragically lost.  A perfunctory Google map search of its Bath Road postcode reveals that it may now be under a car park.

If ever there was a John Brookes garden that I would like to have visited, it is this one.  I am reminded of it often as the terrace outside of Clock House here at Denmans Garden (the 1820s stable block Brookes converted in 1980 as his studio and home), was also inspired by Mondrian’s paintings.  Like the Penguin Courtyards, it is a composition of rectilinear shapes created by a variety of materials including concrete, brick, gravel, and plantings, and is meant to be enjoyed visually through plate glass French doors as well as when sitting or walking through it.  Plant material in the form of clipped boxwood cubes and masses of phormium, choisya, and jasmine create the linear third dimension.  And, of course, it is connected to the architecture, garden, and surrounding Sussex landscape.

Denmans Garden is open to the public year-round.  Please check their website denmans.org for more information.

[1] John Brookes, A Landscape Legacy, (London: Pimpernel Press, 2018), p. 56
[2] Barbara Simms, John Brookes Garden and Landscape Designer, (London: Conran Octopus, 2007) p. 56